Beschrijving

Compleet en bijzonder ingedeelde, ruime eengezinswoning met inpandige garage, annex praktijkruimte/kantoor/hobbyruimte, heerlijk en groot terras op het noordwesten en een riant voorerf met veel parkeerruimte. Ideaal woonhuis voor eventueel een kantoor aan huis! Deze grachtenwoning met  een hele fraaie ligging direct aan het water en solide, traditioneel gebouwd is voorzien van anker-loze spouwmuren, optimale isolatievoorzieningen, aluminium kozijnen/ramen aan de achterzijde en alles ook onder strakke architectuur. 
Zeer kindvriendelijke, vrije ligging in de wijk Weidevenne en met veel groen en speelgelegenheid voor de deur. Fijn uitzicht vanuit de diverse vertrekken over groen en water. Uiteraard zijn alle prettige voorzieningen in deze wijk niet ver weg en is er naast de eigen parkeerfaciliteit voldoende parkeergelegenheid in de directe omgeving.

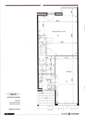
Indeling

Oprit, waarbij je je auto, of twee zelfs, makkelijk kunt parkeren. Entree, hal, toilet en trapopgang naar de 1ste verdieping. Aan de voorzijde de ruime garage met wasmachine/droger opstelling en tevens voorzien van een radiator en wasfaciliteit. Aan de achterzijde een ruime slaapkamer met kleine badkamer welke tevens te gebruiken is als werkruimte.

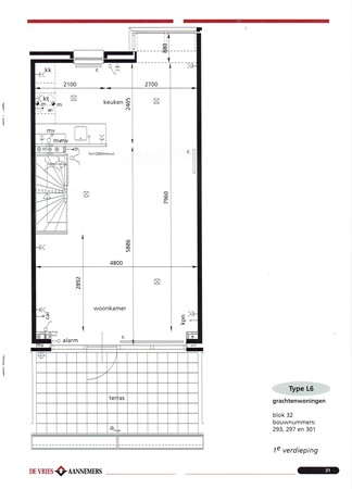
Eerste verdieping

Op de 1ste verdieping zal je verrast worden door de ruimte, het licht en het prachtige uitzicht beide kanten op. Aan de voorzijde is de woonkamer gelegen waarbij je gelijk toegang hebt tot het ruime en zonnige terras van ca 15 m2 met uitzicht op het speelveld. Aan de achterzijde is de moderne keuken gelegen in u-opstelling en voorzien van diverse inbouwapparatuur. Ideaal om lekker lang te tafelen.

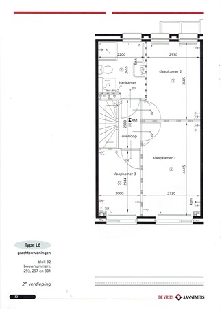
Tweede verdieping

Deze verdieping is normaliter voorzien van 3 ruime slaapkamers, keurig afgewerkt in lichte kleuren en een nette badkamer van alle gemakken voorzien zoals een, douchehoek, wandtoilet en wastafelmeubel.

Balkon

Aan de voorzijde kunt u genieten vanaf het zonnige dakterras met speels zicht op groenvoorziening met wat speeltoestellen.

Bijzonderheden

- Woonoppervlakte: 128m²
- Perceel eigen grond: 106m²
- Inpandige betegelde garage : 16m²
- Bouwjaar: 2000
- Gunstige ligging dichtbij uitvalswegen
- Strakke witte keuken in u-opstelling
- Vloerbetegeling
- Automatische garagedeur
- Nieuw zonnescherm
- Toepassing shutters
- Toepassing 4-tal airco's
- Toepassing rolluiken
- Toepassing zonnepanelen (12 stuks met micro omvormers / 4380 Wattpiek)
- Toepassing professionele waterontharder
- Stadsverwarming dus gasloos wonen!
- Energielabel A+

Kenmerken