| Prijs | € 535.000,- k.k. |
| Type object | Woonhuis, bungalow, half vrijstaande woning, semibungalow |
| Perceeloppervlakte | 248 m² |
| Woonoppervlakte | 98 m² |
| Aanvaarding | In overleg |
| Status | Onder bod |
Kapbungalow in 't Groenewoudt (Purmer Zuid) aan water gelegen, een geweldige buitenkans! Zeer geschikt voor klein gezin of senioren die gelijkvloers willen wonen maar een tuin niet willen missen. Zij die ook nog een garage wensen en willen parkeren in eigen voortuin hoeven niet verder te zoeken want dit aanbod is zeldzaam en van dit type zijn er destijds dan ook maar slechts een viertal gebouwd.
Entree/hal, tuingerichte L-vormige woonkamer met trapkast en toegang tot terras, half open hoekkeuken aan straatzijde met enige inbouwapparatuur. Tussenhal met toilet, betegelde badkamer met ligbad en vaste wastafel, slaapkamer aan de tuinzijde en binnendoor toegang inpandige berging alsmede voormalige garage.
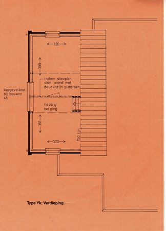
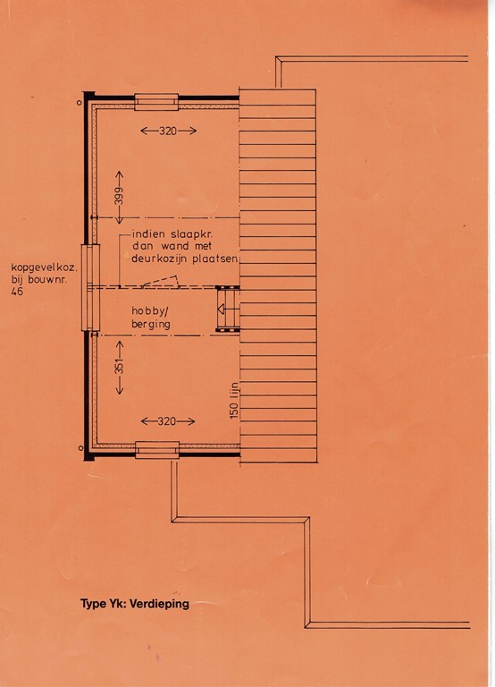
Grote open multifunctionele kapverdieping met hoge nok en mogelijkheid tot realisatie van tweetal slaapkamers met veel bergruimte achter knieschotten of op mogelijke vliering.
De voortuin mét parkeermogelijkheid is lommerrijk evenals de achtertuin welke aan brede waterpartij gesitueerd is. Lekker varen of vissen in alle rust behoort hier dus tot de mogelijkheid.
-Gesitueerd op mooie kavel van 248m² afgekochte erfpacht aan water! -Parkeren in eigen voortuin -Inpandige garage -Slaapkamer en badkamer op begane grond -Ruime multifunctionele kapverdieping -Toepassing laminaat vloeren -Energielabel B -Op loopafstand van Purmerbos, park De Driegang en winkelcentrum Meerland -Aanvaarding kan desgewenst spoedig
| Referentienummer | 00414 |
| Vraagprijs | € 535.000,- k.k. |
| Inrichting | Niet gestoffeerd |
| Inrichting | Niet gemeubileerd |
| Status | Onder bod |
| Aanvaarding | In overleg |
| Aangeboden sinds | Donderdag 4 september 2025 |
| Laatste wijziging | Maandag 6 oktober 2025 |
| Type object | Woonhuis, bungalow, half vrijstaande woning, semibungalow |
| Soort bouw | Bestaande bouw |
| Toegankelijkheid | Mindervaliden Senioren |
| Bouwperiode | 1988 |
| Dakbedekking | Bitumen Dakpannen |
| Type dak | Zadeldak |
| Keurmerken | Energie prestatie advies |
| Isolatievormen | Volledig geïsoleerd |
| Perceeloppervlakte | 248 m² |
| Woonoppervlakte | 98 m² |
| Woonkameroppervlakte | 28,7 m² |
| Keukenoppervlakte | 11,32 m² |
| Inhoud | 400 m³ |
| Oppervlakte externe bergruimte | 6 m² |
| Aantal bouwlagen | 2 |
| Aantal kamers | 3 (waarvan 2 slaapkamers) |
| Aantal badkamers | 1 (en 1 apart toilet) |
| Ligging | Aan rustige weg Aan water Beschutte ligging Dichtbij openbaar vervoer In bosrijke omgeving In woonwijk |
| Type | Achtertuin |
| Oriëntering | Noord west |
| Staat | Normaal |
| Tuin 2 - Type | Achtertuin |
| Tuin 2 - Hoofdtuin | Ja |
| Tuin 2 - Oriëntering | Zuidoost |
| Tuin 2 - Staat | Normaal |
| Energielabel | B |
| Aantal parkeerplaatsen | 2 |
| Aantal overdekte parkeerplaatsen | 1 |
| Warm water | Stadsverwarming |
| Verwarmingssysteem | Stadsverwarming |
| Ventilatie methode | Mechanische ventilatie |
| Badkamervoorzieningen | Ligbad Wastafel |
| Parkeergelegenheid | Inpandige garage |
| Glasvezelaansluiting aanwezig | Ja |
| Tuin aanwezig | Ja |
| Heeft een garage | Ja |
| Heeft schuur/berging | Ja |
| Heeft een dakraam | Ja |
| Heeft zonwering | Ja |
| Heeft ventilatie | Ja |
| Kadastrale aanduiding | Purmerend H 957 |
| Perceeloppervlakte | 248 m² |
| Omvang | Geheel perceel |
| Eigendomsituatie | Erfpacht |