Beschrijving

Watersporters opgelet!
Authentieke 6-persoons woning nabij Alkmaardermeer met 3 slaapkamers (allen ca.13,5m²) open keuken, lichte woonkamer ca. 34m²), groot balkon (11m²) en tuin met terras en veel gazon. Hij is vrijstaand, gebouwd op palen en voorzien van modern comfort met overdekte parkeergelegenheid op maar liefst 525m² eigen grond als een typerende houtconstructie woning en staat op palen zoals in Marken vroeger geschiedde. U woont dus op de verdieping welke privacy en uitzicht waarborgt.

Deze fraaie recreatiewoning ligt op Vakantiepark De Rijp (valt onder Tulp Recreatie bv). Dit park bevindt zich midden in een uitgestrekt en waterrijk polderlandschap, 
waardoor er volop wandel-, fiets- en recreatiemogelijkheden in de buurt zijn. Ondanks de rustige ligging woon je wel vlakbij diverse steden, zoals Alkmaar, Amsterdam en Purmerend. 
Voor je dagelijkse boodschappen fiets je in een kwartiertje naar De Rijp.

Het vakantiepark biedt verschillende faciliteiten voor jong en oud, waaronder een kleine supermarkt, restaurant, snackbar, zwembaden en sportvoorzieningen. 
Op loopafstand vind je een bushalte met een directe verbinding naar Alkmaar. Dankzij de ligging nabij de A9 en A7 ben je ook met de auto snel onderweg.

Indeling

Ruime parkeergelegenheid voor drie auto's alleen al onder het huis. Ook is er een verharde parkeerplaats aanwezig. Via een stalen trap komt u op het bordes bij de voordeur op de eerste verdieping.

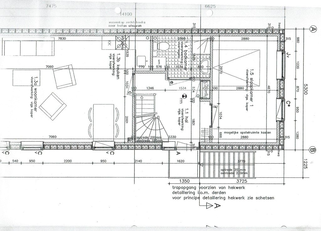
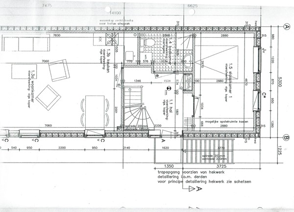
Eerste verdieping

Hal/entree met toegang tot de badkamer, woonkamer en slaapkamer. In de woonkamer vindt u een zithoek met televisie welke inventaris ter overname wordt aangeboden. De open keuken is voorzien van onder andere een koelkast met vriesvak, combimagnetron, vaatwasser en filter koffiezetapparaat. Er zijn in totaal 3 slaapkamers, waarvan één op deze verdieping.

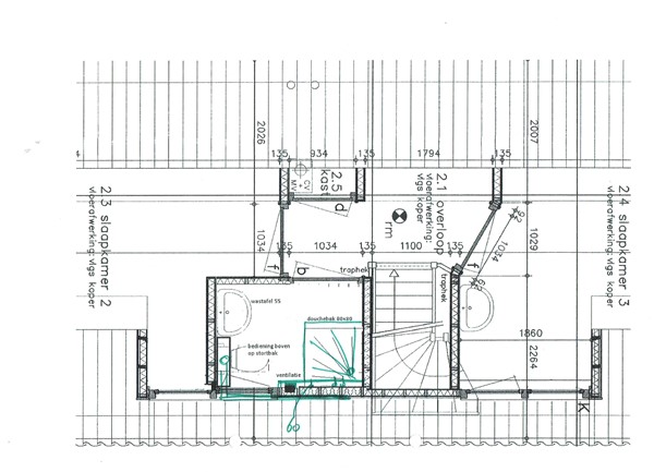
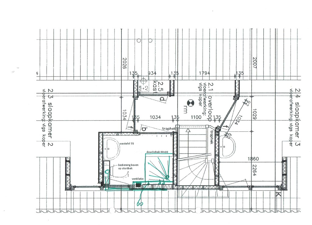
Tweede verdieping

De andere twee slaapkamers met gedeelde dakkapel bevinden zich onder de kap 2, elk met 2 eenpersoonsbedden (eveneens ter overname). Tevens is er een tweede badkamer met douche en toilet alsmede een cv ruimte aanwezig.

Balkon

Vanuit de woonkamer is het ruime balkon (ruim 11m²) eveneens met aanwezig meubilair toegankelijk met prachtig vrij uitzicht over water en groen.

Tuin

Deze woning heeft een grote tuin met tuinmeubilair. Het totale perceel, welke aan twee zijden grenst aan water is namelijk 525m² groot en het betreft volle eigendom!

Bijzonderheden

-Markant Marker-type (op palen)
-Gesitueerd op villapark nabij het Alkmaardermeer en authentieke dorpjes als West-Graftdijk en De Rijp
-Houtconstructiebouw vanaf 1e verd. met betonvloeren, Facapanel gevelbekleding, kunststof kozijnen v.v. HR++ en houten zadeldek gedekt met pannen
-Overdekte begane grond welke vele mogelijkheden biedt!
-Kozijnen gedeeltelijk tijdens bouw extra verlaagd waardoor zittend volop uitzicht en meer lichtinval
-Eerste eigenaar neemt afscheid van deze droom locatie
-Koop/aanneemsom 2013 bijna €400K (aantoonbaar)
-Meerwerk tijdens bouw betrof ruim €20K
-Uitgebreid meubelpakket ter overname
-Aanvaarding kan desgewenst spoedig
-Permanente bewoning wordt oogluikend toegestaan
-Parkkosten van toepasssing

Met drie verschillende mogelijkheden biedt deze woning een diversiteit aan opties die indruk zullen maken op iedereen die op zoek is naar een vastgoedinvestering of een eigen vakantieplek.

Optie 1: Eigen gebruik
Deze vakantiewoning is ideaal voor wie op zoek is naar een eigen plekje om te ontspannen en tot rust te komen. Met alle benodigde voorzieningen en een sfeervolle inrichting is dit de perfecte keuze voor wie op zoek is naar een tweede thuis.

Optie 2: Volledige verhuur
Voor investeerders die op zoek zijn naar een rendabele vastgoedinvestering is volledige verhuur een aantrekkelijke optie. Deze vakantiewoning biedt alle mogelijkheden om een stabiel rendement te behalen en is gelegen op een populaire locatie die garant staat voor een goede bezettingsgraad.

Optie 3: Combinatie Verhuur/Eigen gebruik
Voor wie wil genieten van de voordelen van zowel eigen gebruik als verhuur is de combinatie van beide de perfecte oplossing. Geniet van je eigen vakantieverblijf wanneer het jou uitkomt en verhuur de vakantiewoning wanneer je er zelf geen gebruik van maakt. Zo haal je het maximale uit je investering.

Diversiteit aan mogelijkheden
Of je nu op zoek bent naar een eigen plekje om te genieten van je vrije tijd of naar een slimme investering met hoog rendement, dit vastgoedobject biedt een diversiteit aan mogelijkheden die tegemoet komen aan verschillende behoeften en doelstellingen.

Kenmerken